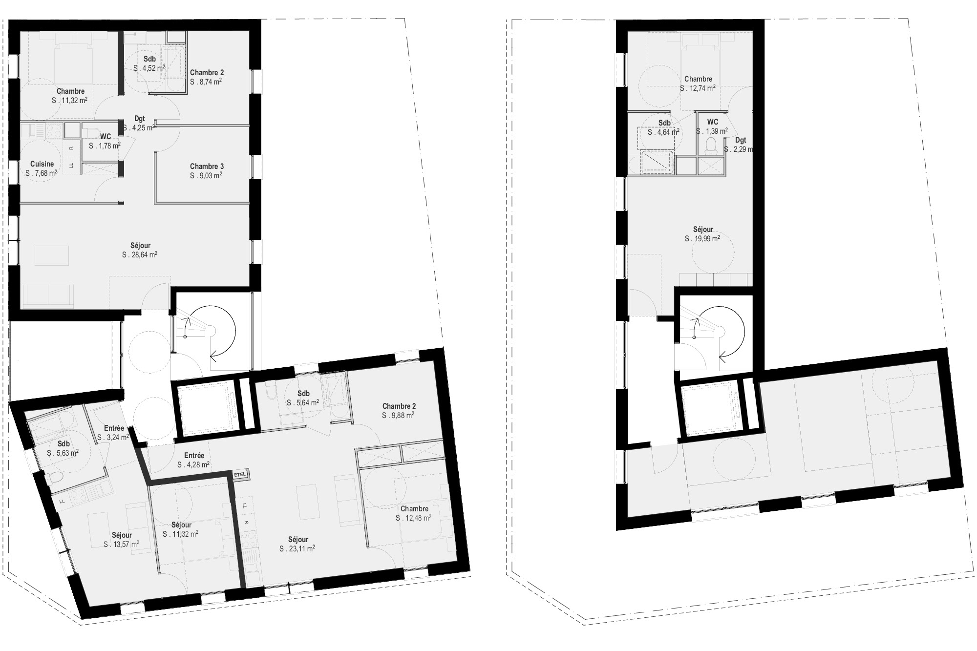
Aubervilliers

Location › Aubervilliers · Date › 2019 · Client › Private · Conceptor › maàpa · Surface › 1200 m² · Photo › maàpa