Malakoff
Lieu › Malakoff · Date › 2022 · MOA › Cogedim · MOE › Atelier Dupont + maà pa · Surface › 3.700m2 SDP · Photo › Hauts Mirages
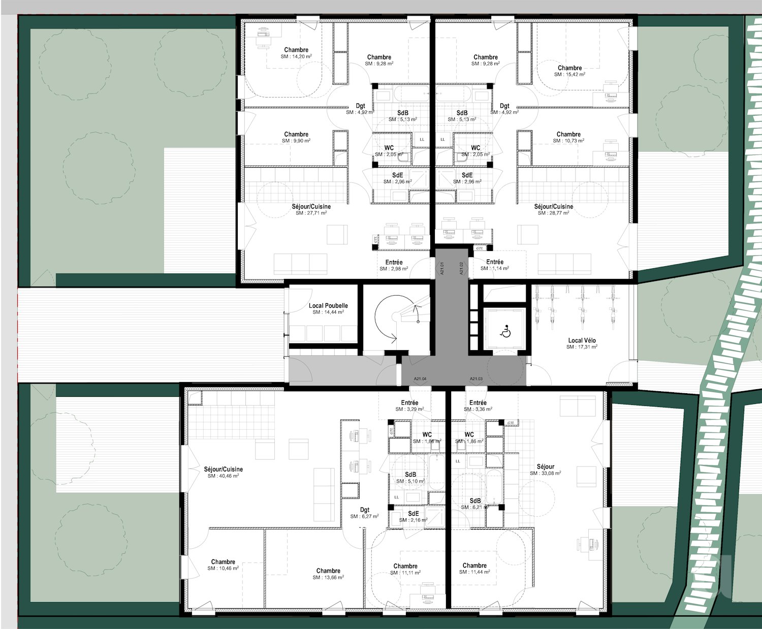
Logements à la cité des poètes
Le programme de logements en accession développe 65 logements sur 4 niveaux. La forme bâtie de ces plots se décompose en deux volumes décalés, se fondant dans le parc. La volumétrie et les façades offrent des vues sur les espaces végétalisés. Tous les appartements auront une double ou une triple orientation.
La forme qui en résulte est riche et complexe, l’organisation des logements est tramée, rigoureuse et permet d’envisager des regroupements ou des divisions aisées afin de s’adapter aux besoins des habitants dans le temps.




